Cambios en la ocupación y la altura de cornisa de la UA-1 de Trillo, en Guadalajara
Trillo es un municipio y localidad española de la provincia de Guadalajara, en la comunidad autónoma de Castilla-La Mancha. Se encuentra a orillas del río Tajo, en la comarca de La Alcarria. Alberga a 1.401 habitantes censados en 2022, que ocupan una superficie de 161,87 km².
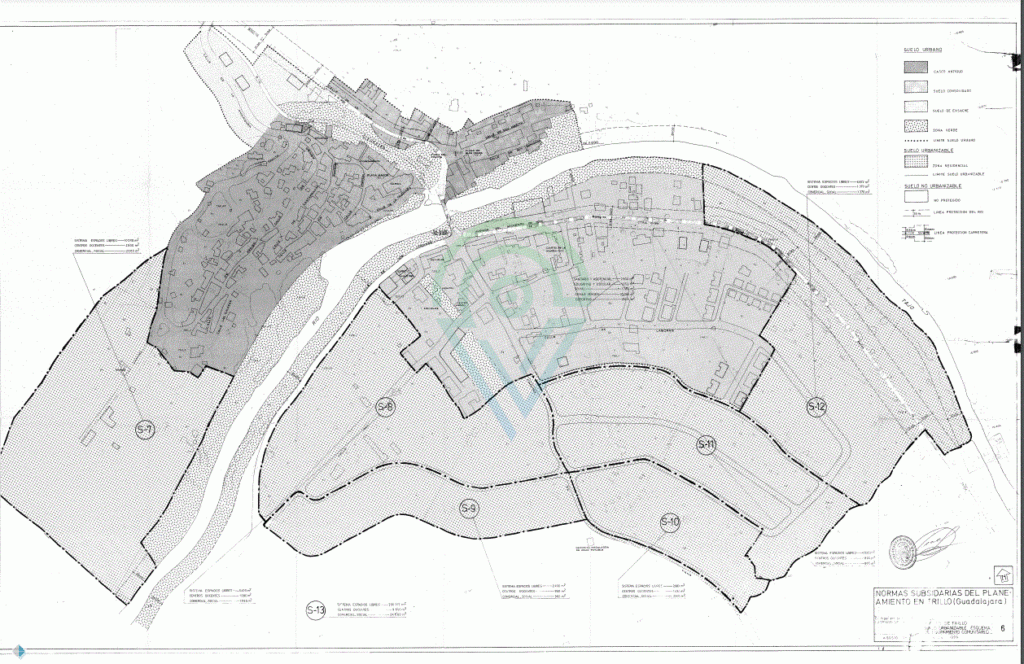
Sus Normas Subsidiarias se aprobaron definitivamente el 16 de marzo de 1988. En ellas se definieron diversos ámbitos, entre los cuales se encuentra la Unidad de Actuación UA-1.
El pasado 27 de abril de 2023, se sometió a información pública una modificación puntual de las Normas Subsidiarias en el ámbito.Esta modificación es consecuencia de la necesidad de actualizar el parámetro de la ocupación en la tipología unifamiliar aislada y de la altura de cornisa.
En el caso de la ocupación, mientras que para la tipología de edificación adosada se permite un 80%, para la edificación aislada se limita al 35%. En el caso de la edificación adosada al poder prescindir del retranqueo en un lindero, se dispone de más m2 en los que materializar la edificación permitida. Por el contrario, con la edificación aislada, al tener un lindero más de retranqueo, se dispone de menos de 2m en los que materializar la edificación. Por eso no tiene mucho sentido que los parámetros de ocupación penalicen aún más esta diferencia.
Con esta modificación se facilitará la posibilidad de materializar más construcción en planta baja, contribuyendo a mejorar la accesibilidad a personas mayores o con limitaciones de movilidad.
Somos VisualUrb, urbanismo en movimiento. Síguenos en LinkedIn
Solicita un informe de urbanismo de Trillo en VisualUrb-maps
Descubre todo lo que te podemos ofrecer en VisualUrb
Además, Puedes obtener toda la información urbanística relevante de estos desarrollos en VisualUrb-maps y en VisualUrb-data, también puedes anunciar tus inmuebles en venta de forma gratuita en nuestra web.

#urbanismo #guadalajara #trillo #informes #visualurb #inversioninmobiliaria
